これからの生活を、より快適に、安心して暮らせるようにするためのリノベーション。段差のある室内をバリアフリーにしたり、内窓を取り付けて外気の影響を受けにくい環境へ改善しました。室内のデザインは、施主様が大切にされているお持ちのダイニングテーブルと食器棚に合わせ、木の温もりを感じる空間へ仕上げました。
- 設計期間約2ヶ月
- 工事期間約2ヶ月
- 築年数30年
- 平米数69.78㎡
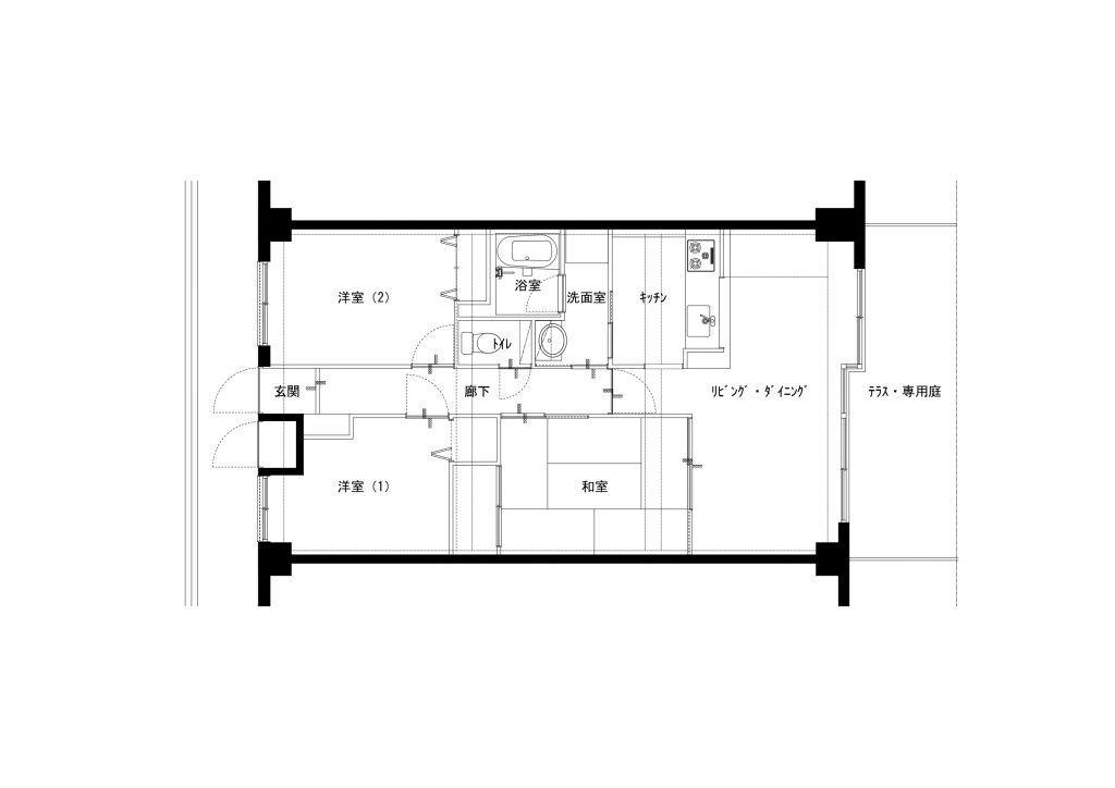
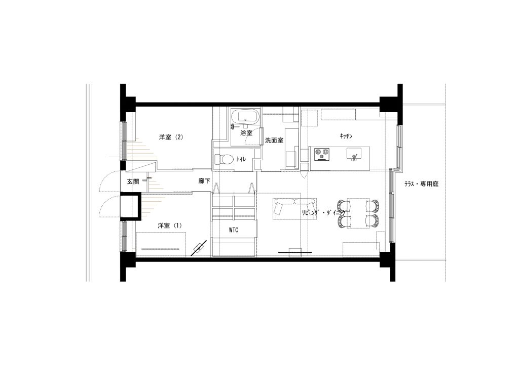
- 間取り3LDK→2LDK+WTC
- 家族構成
- 居住形態分譲マンション
築30年のマンションをリノベーション。
箱デコでリノベーションをしたご友人のマンションを見たことが、リノベーションを決意されたきっかけでした。
設備の劣化や室内にある段差にお悩みで、これからの暮らしを安心、安全、快適に過ごせるようにプランニング。天井高のあるマンションだったので、床を上げてバリアフリーの室内を実現しました。また、内窓を設置し、断熱性能と防音性能も高めています。
デザインは、大切に使われているダイニングセットと食器棚をリノベーション後も使いたいというご要望があり、思い入れのある家具を活かした空間をご提案。建具や床材は同じメーカーで合わせ、空間に統一感を持たせています。
以前のキッチンは壁に囲まれて独立していましたが、リノベーションで壁をなくしてキッチンの向きを変えることで、料理や家事をしながらでも家族の様子が見え、会話を楽しめるように。照明やカーテンなどのインテリアもご提案しています。
お施主様が大切にしている家具が活き、木の温もりを感じながらこれからの暮らしを安心して送れる住まいが完成しました。
