自分の時間を大切に、好きなことを楽しみながら暮らせる住まいにリノベーション。一体感のある広々とした空間に生まれ変わったリビングスペースは、お施主様がお好きなモノトーンでコーディネート。各部屋ごとの用途を明確にして、お施主様のご要望やライフスタイルに合わせた空間をご提案しました。
- 設計期間約2ヶ月
- 工事期間約2ヶ月
- 築年数28年
- 平米数63.05㎡
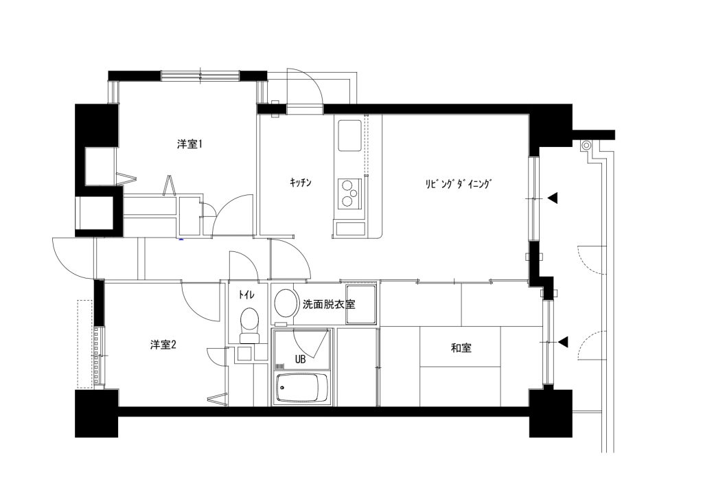
- 間取り3LDK→2LDK+Pantry
- 家族構成
- 居住形態分譲マンション
築28年のマンションを購入後リノベーション。「自分のための家づくりがしたい」というご希望から、それぞれの空間ごとに、どんな過ごし方がしたいかをヒアリングしてプランニング。
LDK空間はキッチンの間仕切り壁をなくし、1つの広々とした空間に。リビングの飾り棚にはお好きな物を飾って楽しめます。また、以前はなかったパントリーをキッチン横に設けることで、表にものが出ないすっきりとした生活を送ることができるようになりました。パントリーは通路に設置しているので、来客時にはカーテンで簡単に隠せるようにしています。
洗面所でメイクをしたり、室内干しもしたいというご要望から、洗面空間は以前の倍のスペースを確保。造作洗面でカウンターの幅を広々と取り、メイクやちょっとした家事も可能に。ハンガーパイプを取り付けたことで、室内干しスペースも実現しました。
お持ちの洋服や物をたくさん収納できるように収納部屋を一部屋確保。壁一面に枕棚とハンガーパイプを設置し、大容量の洋服収納に。可動棚も設置し、鞄なども見やすく収納できるようになりました。
全体のコーディネートとしては、モノトーンがお好きとのことで、グレーやブラックの色味でコーディネート。リノベーションした空間に合わせて、バーチカルブラインドもご提案しました。また、LDKの全ての窓に内窓を設置し、断熱性能や防音性能も高めています。断熱性能が向上したことでエアコン効率が良くなり、光熱費の削減も期待できます。
お施主様のこれからの暮らしをより充実させ、快適に過ごせる空間が完成しました。
