断熱性能や気密性能を高め、これからの暮らしを、安心・健康・快適に心地良く暮らしていくためのリノベーション。
住まいの性能を整えることと、心地良い空間をつくること。そのどちらも大切にしながら、これからの暮らしをやさしく支える住まいへと生まれ変わりました。
- 設計期間約4ヶ月
- 工事期間約3ヶ月
- 築年数38年
- 平米数80.52㎡
- 間取り3LDK+WIC
- 家族構成
- 居住形態マンション
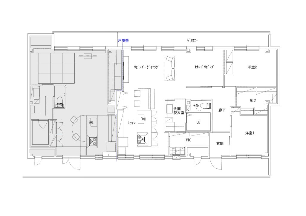
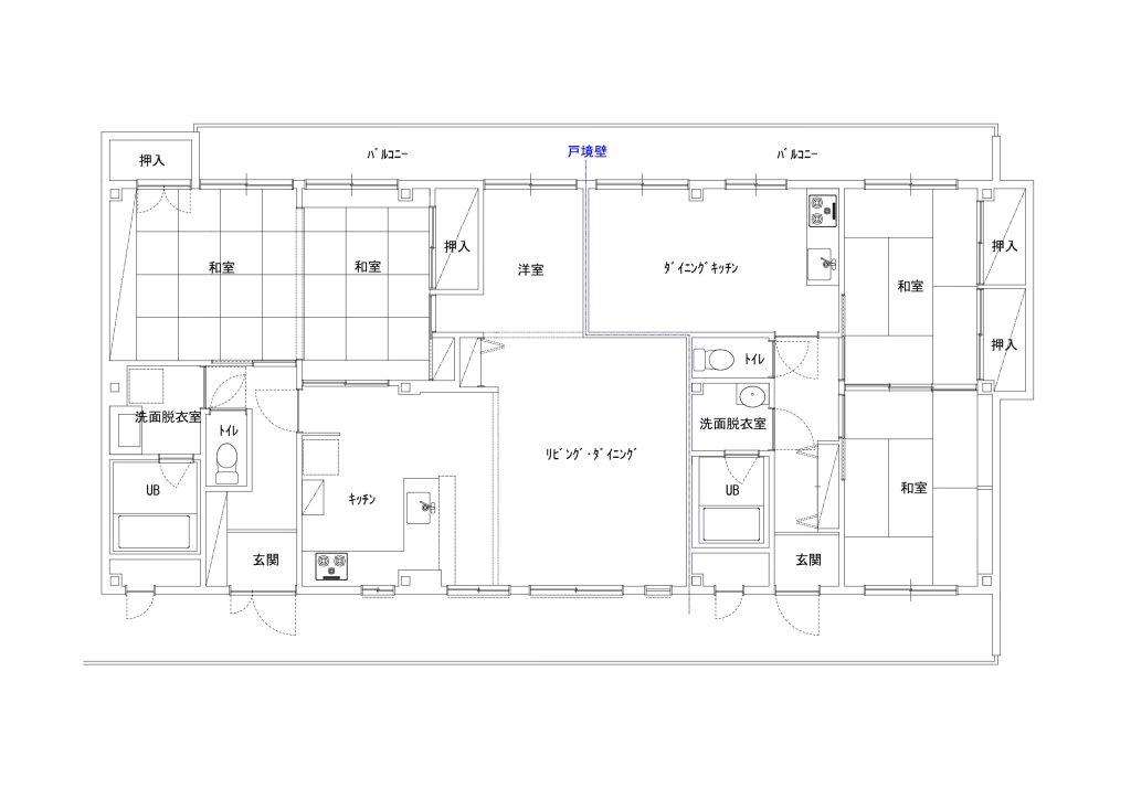
お施主様が所有されている、築38年のマンション。ワンフロア2戸をフルリノベーションした住まいです。
最初にご相談いただいたのは、室内環境の改善についてでした。断熱や気密の性能が十分でない住まいでは、夏の暑さや冬の寒さの影響を受けやすく、日々の暮らしの中で不快さを感じていらっしゃいました。
そこで今回のリノベーションでは、壁面や床下に高性能の断熱材を採用。さらに内窓の設置や玄関ドアの交換を行ない、外気の影響を受けにくく、空気の移動も抑えられる住環境を整えました。
今回の工事は、ワンフロアをすべてスケルトン状態にしてからのスタート。2戸を隔てていた戸境壁(こざかいへき)の位置も変更し、新たに設け直すなど、大規模なリノベーションとなりました。
お施主様のご要望は「シンプルな飽きのこない空間」。グレージュを中心に、全体的に落ち着いたカラーでコーディネートしています。
キッチン空間はあまり生活感を出したくないとのことだったので、お持ちの食器類をたっぷり収納できるようにキッチンの背面を全面収納にしたり、玄関からキッチン空間への動線上に大容量のウォークスルークローゼットを設け、日用品や食品類の収納スペースを確保しています。
リビングダイニングは、ダイニングセットや照明、カーテンなどのインテリアもご提案をして、色味を抑えた統一感のある空間に仕上げています。
室内の断熱性能と気密性能を高めたことで、空間を細かく仕切らなくても、家全体の温度差が少ない快適な住まいに。広々とした落ち着きのあるLDK空間で、快適に、気持ちもゆったりと暮らせる住まいが完成しました。
