性能向上リノベが叶える「これからの暮らし」~親世帯編~

断熱性能や気密性能を高め、これからの暮らしを、安心・健康・快適に心地良く暮らしていくためのリノベーション。
住まいの性能を整えることと、心地良い空間をつくること。そのどちらも大切にしながら、これからの暮らしをやさしく支える住まいへと生まれ変わりました。

  • 設計期間約4ヶ月
  • 工事期間約3ヶ月
  • 築年数38年
  • 平米数48.13㎡
  • 間取り1LDK
  • 家族構成
  • 居住形態マンション

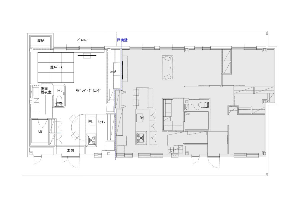
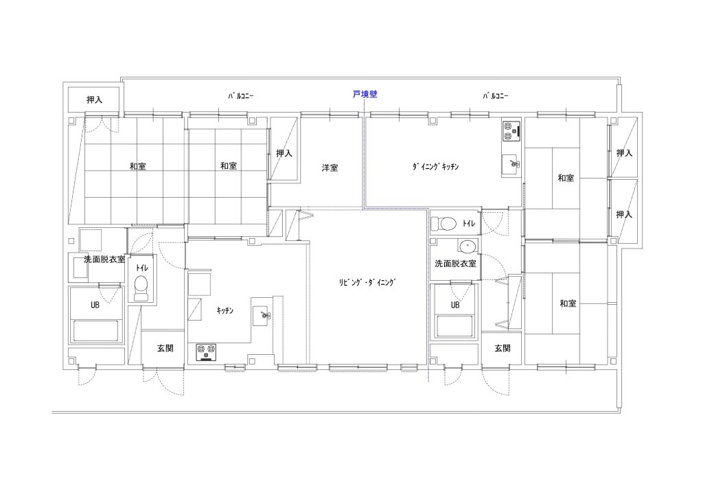
お施主様が所有されている、築38年のマンション。ワンフロア2戸をフルリノベーションした住まいです。
最初にご相談いただいたのは、室内環境の改善についてでした。断熱や気密の性能が十分でない住まいでは、夏の暑さや冬の寒さの影響を受けやすく、日々の暮らしの中で不快さを感じていらっしゃいました。
そこで今回のリノベーションでは、室内の環境を改善するため「性能向上リノベーション」を行いました。壁面や床下に高性能の断熱材を使用したり、内窓の設置や玄関ドアの交換を行ない、外気の影響を受けにくく、空気の移動も抑えられる住環境を整えました。
今回の工事は、ワンフロアをすべてスケルトン状態にしてからのスタート。2戸を隔てていた戸境壁(こざかいへき)の位置も変更し、新たに設け直すなど、大規模なリノベーションとなりました。
内装は、お施主様がお好みのグレージュなど、彩度を抑えたカラーでコーディネート。落ち着いたトーンでまとめることで、視覚的な刺激を抑えながら、上品で穏やかな雰囲気の空間に仕上げています。
キッチン空間は、キッチン本体のロッシュグレーに合わせて、壁紙や床材をセレクト。落ち着いた雰囲気を保ちながら、お手入れのしやすさにも配慮した空間に整えました。また、キッチンの天井には下がり天井を設け、間接照明を採用。やわらかな光が広がることで、空間に奥行きと広がりを感じられる演出となっています。
室内の断熱性能と気密性能を高めたことで、空間を細かく仕切らなくても、家全体の温度差が少ない快適な住まいに。内装のコーディネートも含め、目にも心にもやさしく、日々をストレスなく過ごせる住まいが完成しました。

長年使用していたキッチン

お施主様の好みの落ち着いたグレージュカラーでコーディネートし、素材の選び方でお手入れもしやすくなったキッチン空間

垂れ壁や襖で仕切られた室内空間

断熱性能と気密性能を高めることで、それぞれの空間を細かく仕切らなくても快適な空間を保てるように

リノベーション工事がスタートしてスケルトン状態に解体した様子

壁面にLIXILの高性能の断熱材SWを充填した様子

キッチン横の断熱性能と気密性能が低い窓

内窓(インプラス)設置後の様子

お客様の声

まずは漠然としたイメージをていねいに聞き取り具現化していただいたことに感謝いたします。特に設計士さんから直接説明してもらえたのは大きな安心でした。トラブルにも即応されるなど、人的資源には感動しました。今回、集合住宅の居室のダウンサイジングと断熱性能の向上が目的でしたが、2ヶ月生活して分かったことは、
・室内の温度差がなく、エアコン設定より高温になり、前年同月比電気代が半減した。
・断熱材の気密性で暖房中、乾燥しがちなので、フロ上りの換気扇をOFFにして適正湿度になった。
・集合住宅の宿命課題である生活音の振動は、以前は直接的だった聞こえ方が反響音に変わった。(慣れるまでは怖い)
プラン作りの段階から施工中、施工後を通して、スタッフの皆様には無理・難題を受け止め誠実に対応してもらえたことが何より嬉しかったです。床材・クロス・建具・コンセントプレート・シール材など全体的に低彩度でのコーディネートにこだわり、おかげさまで、目の疲労感やトラブルが減り、よりストレスフリー状態に近づくことができています。お世話になりました。ありがとうございます。